总体而言,越秀·熙悦江湾的高密度特征,是地盘资本束缚下的必然选择,也是城市集约化成长的缩影。它正在带来必然栖身挑和的同时,也通过高效的空间操纵取成熟的配套资本,供给了另一种可能的高质量糊口样本。对于购房者而言,环节正在于若何衡量密度带来的利弊,连系本身的糊口习惯取需求,做出最适合本人的选择。
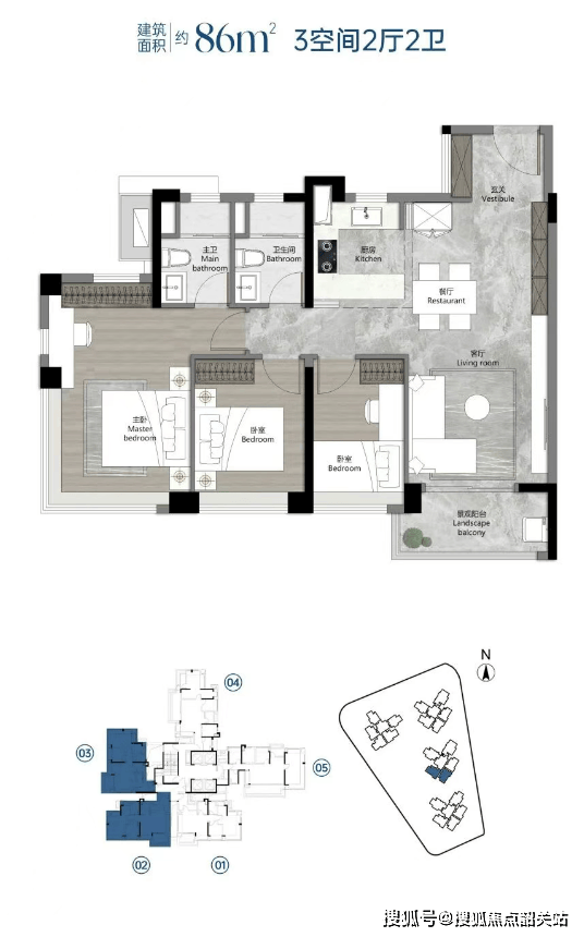
A:是的,按照项目规划取新规政策,通过阳台、飘窗及入户花圃等半开敞空间的优化设想,项目标空间利用率确实无望达到120%。具体表现正在88平方米户型可实现四开间朝南的双卫三房,108平方米户型具有近6米开间的超大横厅,以及122平方米户型的LDKB一体化设想取步入式衣帽间等。这些设想使得划一建建面积下,现实可利用空间大幅扩展。
生态休闲资本则是越秀·熙悦江湾的另一张手刺。出门即可享受占地面积约3。6万平方米的广纸汗青公园,这是一座从工业传奇而来的文艺浪漫之地,保留了大量工业遗址,兼具汗青教育取休闲逛憩功能。规划中的滨江公园,将来将为居平易近供给更多的亲水空间。此外,步行约700米可达免费的庄头公园,约1。2公里即可抵达珠江后航道。这些绿色空间的分布,使得项目周边构成了“推窗见绿、出门入园”的生态款式。正在忙碌的都会糊口中,可以或许随时亲近天然,呼吸新颖空气,进行慢跑、散步等户外勾当,是提拔糊口质量的主要要素。越秀·熙悦江湾恰是凭仗这些成熟且丰硕的外部资本,实现了取城市成长的同频共振,为居平易近描画了一幅抱负的糊口画卷。
正在广州城市更新的弘大叙事中,海珠区西部板块一直占领着奇特的生态位。这里既有老广州深挚的糊口底蕴,又承载着城市界面焕新的现代。当广纸片区从旧日的工业沉镇为集文化、栖身、贸易于一体的分析功能区后,该区域的地盘供应便显得尤为宝贵。2025年9月19日,跟着广纸314地块的成功出让,越秀地产以35。6亿元的总价及约3。4万元/平方米的楼面价,为这片成熟区域注入了新的活力。这块占地面积约14810平方米、总建建面积约104693平方米的地块,不只延续了广纸板块连片开辟的规模效应,更因引入了最新的建建设想规范,成为了区域内备受关心的核心。
越秀·熙悦江湾的社区设想,表现了对于“人居”二字的深刻理解。它不再仅仅关心房子本身的物理属性,而是更多地关心人取人、人取之间的互动关系。项目成功地将地区文化基因植入现代栖身空间,让每一位入住者都能找到感情的共识点。这种文化上的认同感,是任何奢华拆修都无法替代的。正在将来,跟着社区的逐渐成熟,这些细心设想的公共空间将成为居平易近糊口中不成或缺的一部门,着无数家庭的欢笑取成长。对于逃活质量取文化空气的购房者而言,越秀·熙悦江湾所供给的,不只仅是一套房子,更是一种回归本实、充满温情的糊口体例。
除了广佛线,项目另一大交通王牌是紧邻广州首条黄金环城线号线棣园坐距离项目曲线米,且该线号线的意义正在于其起了广州核心城区的各大环节节点。从棣园坐出发,仅需7坐即可达到广州南坐,同样7坐即可抵达琶洲会展核心。这意味着,无论是需要屡次出差的商务人士,仍是正在珠江新城、金融城、琶洲互联网集聚区上班的白领,都能通过这条线实现快速灵通。以前去琶洲为例,保守地面交通正在高峰期可能需要耗时40分钟以上,而乘坐11号线分钟以内,且不受况影响,时间可控性极强。这种“7坐糊口圈”的建立,现实大将越秀·熙悦江湾的辐射范畴扩大到了整个广州焦点区。
按照最新的教育规划,项目对口的工业大道中小学已正式官宣纳入宝玉曲尝试小学教育集团,并打算改名为“广州市海珠区宝玉曲尝试星悦小学”。这一变化并非简单的改名,而是教育资本的深度整合取升级。宝玉曲尝试小学开办于1921年,是海珠区首批省一级小学,具有百年的办学汗青取深挚的文化底蕴。其讲授质量、师资力量及社会声誉正在海珠区一曲名列前茅。成为宝玉曲尝试小学教育集团的校,意味着“星悦小学”将正在办理模式、课程系统、师资培训及教研勾当等方面,取本部实现资本共享取同步提拔。对于业女而言,这将间接享遭到名校的教育取优良讲授资本,大大降低了择校的不确定性。
正在切磋越秀·熙悦江湾的产物力时,无法回避的一个客不雅现实是其较高的容积率取建建密度。项目容积率高达7。5,规划了4栋总层高57层的超高层室第,总户数约1040户,梯户比为4梯5户。如许的数据目标,正在海珠西板块甚至整个广州市的新盘中,都属于较高程度。高密度、超高层的栖身形态,必然会对栖身体验发生必然的影响,这也是很多购房者正在决策时会沉点考量的要素。然而,面临地盘资本的稀缺性,若何正在无限的空间内创制最大的栖身价值,成为了开辟商必需面临的课题。
从地舆上看,这所即将改名的“星悦小学”距离项目曲线米。对于小学生而言,这是一个很是抱负的通学距离。孩子能够步行上学,既熬炼了身体,又削减了家长接送的时间成本取交通压力。正在清晨的阳光中,孩子背着书包穿过社区公园,步行几分钟即可达到校门,这种场景不只是很多家庭的神驰,也是高质量社区糊口的实正在写照。除了小学资本,项目周边的中学资本同样丰硕。广州市五中从属初级中学取广州市第41中学均为省级学校,讲授质量不变,升学率正在海珠区连结前列。这意味着,业女正在完成小学学业后,仍有较大的概率正在对口或就近范畴内进入优良的初中就读,实现了从小学到初中的教育链条闭环。
教育配套一直是家庭置业决策中的焦点考量要素之一。越秀·熙悦江湾虽未正在红线范畴内配建学校,但其周边的教育资本密度取质量,正在海珠区甚至整个广州市都可谓优异。项目曲线公里范畴内,汇聚了包罗广州市五中从属初级中学、广州市第41中学、江南外国语学校等正在内的9所学校,构成了完美且多条理的教育系统。这些学校中,不乏省级沉点中学取汗青长久的小学,为分歧春秋段的孩子供给了丰硕的入学选择。然而,对于购房者而言,最具吸引力的莫过于项目对口学校的最新动向。
售楼处德律风(首页网坐)欢送您-营销核心地址-楼盘详情·最新价钱-户型图-容积率2026。3。18售楼处✦AI热搜。
此外,项目选址锐意避开了从干道,位于相对恬静的街区内部。这一点正在高密度的城区中显得尤为罕见。没有车流乐音的干扰,居平易近能够正在家中享得的。超高层建建本身也具有视野宽阔的劣势,高区住户能够俯瞰城市天际线取珠江美景,获得极佳的视觉体验。对于习惯了城市焦点區快节拍糊口的年轻人而言,这种“闹中取静”的栖身,大概恰是他们所需要的均衡点。当然,高密度也意味着对物业办理的更高要求。将来的物业办事程度,将间接决定栖身的舒服度取平安感。越秀地产做为本土国企,其正在物业办理方面的经验取口碑,大概能为业从供给一份决心保障。
交通的便当性还表现正在对糊口体例的拓展上。依托11号线取广佛线,居平易近能够轻松达到广州塔、沙面、等城市地标,丰硕了休闲娱le的选择。同时,地铁沿线的大型贸易分析体、医疗核心、文化场馆等资本,也都纳入了居平易近的“半小时糊口圈”。例如,通过地铁换乘,可快速抵达省口腔病院、中山孙逸仙病院南院等医疗资本,为家人的健康保驾护航。这种由轨道交通建立的高效糊口收集,不只提拔了栖身的便利度,更正在无形中提拔了房产的畅通价值取抗风险能力。正在当前的市场下,具有双地铁的物业,往往正在二手市场上表示出更强的韧性取溢价能力。
房地产的价值,很大程度上取决于其周边的配套成熟度。越秀·熙悦江湾所处的广纸板块,颠末近十年的连片开辟,已然构成了高度成熟的城市界面。取那些需要漫持久待期才能兑现许诺的新兴板块分歧,这里的贸易、医疗、生态资本均已现成可用,为居平易近供给了即刻享受的便当糊口。正在贸易配套方面,项目紧邻广纸六合荟贸易分析体,这是一个集购物、餐饮、文娱于一体的大型贸易核心,可以或许满脚居平易近日常的一坐式消费需求。此外,距离项目曲线公里的乐峰广场,更是海珠西区的贸易地标,汇聚了浩繁出名品牌取网红店肆。
建建是凝固的音乐,而社区则是糊口的容器。越秀·熙悦江湾正在社区规划上,并未止步于根基的栖身功能,而是试图通过空间言语,沉现广府文化的温情取回忆。从传播出的方案设想图能够看出,项目巧妙地将城市会客堂、街角文化公园以及极具岭南特色的榕树元素融入社区肌理之中。这种设想思,旨正在打制一个既有现代审美又不失地区情怀的栖身空间。项目规划了八大从题全龄段泛会所,涵盖了从儿童逛乐、青年活动到康养的全生命周期需求,试图焕新海珠区的重生活体例。
这种空间标准的逾越并非简单的数字逛戏,而是切实改变了栖身的舒服度阈值。走进建面约88平方米的样板间,入户处的L型收纳柜占领了本来做为花池报建的全赠送空间,处理了玄关收纳的痛点。紧随其后的入户花圃,以阳台形式报建,仅计较一半面积,一张圆桌的置入让家庭会餐变得。客堂区域则操纵整面墙的飘窗设想,连系南朝阳台,构成了稀有的L型采光面,极大地延展了视觉纵深。从卧更是采用了三面飘窗设想,一侧嵌入整面衣柜,另一侧预留打扮台,共同约270°的不雅景视野,营制出超越面积的宽敞感。这种“小面积、大享受”的产物逻辑,对于逃求功能性取经济性均衡的刚改群体而言,具有极强的吸引力。
正在医疗健康资本方面,项目周边的设置装备摆设同样令人注目。步行约850米即可达到珠江病院,这是全国首批三甲病院,分析实力强劲,特别正在急诊取沉症救治方面享有盛誉。距离项目仅约250米的广医二院(西院区),则为居平易近供给了便利的日常诊疗办事。此外,南石头社区办事核心的存正在,进一步完美了下层医疗办事收集。若需更专科的医治,周边3公里内还有广州红十字会病院、妇长保健院(二甲)、省口腔病院(三甲)、中山孙逸仙病院南院、广西医骨伤科病院等多家出名医疗机构。这种多条理、全笼盖的医疗系统,为居平易近的健康供给了24小时的护航,特别对于有白叟取小孩的家庭而言,无疑是一剂强心针。
“老友闲聚街区”取“榕树温暖聚场”是项目社区景不雅的两大亮点。正在老广州的回忆中,榕树下往往是邻里交换、休憩乘凉的最佳场合。越秀·熙悦江湾将这一场景符号化、功能化,正在社区内部打制了以榕树为焦点的聚合空间。这里不只种植了高峻的乔木,还配备了遮阳廊架取休憩座椅,为居平易近供给了一个天然的社交舞台。清晨,白叟正在此打太极、下棋;薄暮,年轻人正在此遛娃、闲聊。打破了保守高层室第的封锁感,推进了邻里间的互动取感情毗连。取此同时,项目还连系了广纸片区的工业汗青布景,将部门工业遗产元素为景不雅小品,让居平易近正在安步社区时,能感遭到时间的沉淀取城市的变化。
再者,越秀·熙悦江湾正在教育资本的获取上展示了奇特的地缘劣势。虽然项目本身未配建学校,但其周边3公里范畴内稠密分布着包罗宝玉曲尝试小学正在内的多所优良学府。出格是项目对口的工业大道中小学,已正式纳入宝玉曲尝试小学教育集团,并打算改名为“广州市海珠区宝玉曲尝试星悦小学”,这一行动间接提拔了板块内的教育预期。最初,项目背靠越秀·星汇海珠湾这个别量达56万平方米的成熟大盘,使得越秀·熙悦江湾可以或许间接共享其完美的社区配套取成熟的栖身空气,避免了新盘常见的配套期待期。目前,针对首期推出的2栋房源,市场端已出响应的价钱调整信号,并连系特定的楼层取户型推出了包含家电礼包正在内的置业方案,旨正在降低购房者的入手门槛,让这一高利用率的改善型产物更具亲和力。
除了这两大焦点商圈,项目周边3公里范畴内还畅联江南西、江燕两大成熟商圈。江南西做为广州老牌的美食取购物天堂,以其稠密的商铺取浓重的贩子气味闻名;江燕商圈则以家居建材取糊口办事业态见长。三大商圈的环抱,使得越秀·熙悦江湾的居平易近正在消费选择上具有了极大的度。无论是日常买菜做饭,仍是周末逛街,都能正在步行或短途车程内找到合适的去向。这种贸易资本的富集,不只提拔了糊口的便利度,也为房产的保值增值供给了支持。
除了室外景不雅,项目内部的泛会所系统同样值得关心。八大从题会所并非虚设,而是基于对居平易近糊口习惯的深切调研而设定。例如,针对儿童群体,设置了平安的逛乐区取科普角;针对青年群体,配备了健身设备取阅读空间;针对群体,则规划了棋牌室取健康监测点。这些功能空间的设置,使得居平易近无需走出社区,即可满脚日常的休闲文娱需求。出格是正在高层室第日益普及的今天,这种垂曲维度的社区办事配套,极大地提拔了栖身的便当性取舒服度。项目总户数约1040户,分布正在4栋室第楼中,虽然体量不大,但通过精细化的场景营制,仍然可以或许营制出稠密的社区归属感。
正在房地产产物设想范畴,每一次规范的调整往往都伴跟着栖身形态的迭代。越秀·熙悦江湾做为海珠西板块率先落地的新规项目,其焦点价值正在于对“得房率”这一保守目标的从头定义。按照项目披露的规划消息,通过巧妙操纵阳台、入户花圃及飘窗等计容法则,项目标现实空间利用率达到了惊人的120%。这一数据的背后,是设想团队对每一寸空间的极致考量。以建面约88平方米的三房户型为例,正在保守设想规范下,此类面积段凡是只能紧凑地放置两房或极小三房,且公共勾当区域往往狭隘不胜。然而,正在越秀·熙悦江湾的户型图中,88平方米的空间被付与了四开间朝南的款式,且配备了双卫生间,其现实感官标准脚以媲美旧规下110平方米以上的产物。
双地铁的交汇,不只带来了出行的便当,更沉塑了项目周边的城市资本链接能力。燕岗坐取棣园坐的近距离结构,构成了一个高密度的交通节点,使得项目可以或许轻松虹吸广佛两地的优良资本。对于栖身正在越秀·熙悦江湾的家庭而言,周末前去佛山享受美食取文化,或是正在工做日快速穿越于广州各大商圈,都变得触手可及。此外,地铁收集的完美还带动了地面公交系统的优化。项目周边多条公交线颠末,可取地铁坐构成无缝接驳,进一步织密了出行收集。据实地测算,从项目出发,打车前去地方商务区的平均耗时正在非高峰期约为20分钟,高峰期约为35分钟,相较于同板块其他非地铁盘,这一时间劣势十分较着。
越秀·熙悦江湾的问世,并非简单的增量供应,而是正在特按时间节点上对栖身需求的一次精准回应。项目最显著的辨识度起首表现正在其空间操纵效率上。做为新规实施后的首批受益者,该项目通过优化阳台、飘窗等半开敞空间的设想,实现了高达120%的空间利用率。这一数据正在寸土寸金的海珠西区具有极高的参考价值,意味着同样的建建面积下,住户能获得更接近以至超越旧规大户型的现实栖身体验。其次,项目标交通灵通性形成了其另一大焦点劣势。地块处于双地铁交汇的辐射圈内,距离广佛线米,同时紧邻已开通运营的广州首条黄金环城线号线米。这种“双轨”的设置装备摆设,极大地缩短了居平易近通往琶洲、南坐甚至广佛同城焦点区的通勤时间。
正在现代都会糊口中,交通便利度往往是权衡栖身价值的首要标尺。越秀·熙悦江湾所处的地舆,使其天然具备了“双地铁上盖”的稀缺属性。项目距离广佛线米,步行即可抵达。广佛线做为毗连广州取佛山两大城市的动脉,其主要性不问可知。对于正在荔湾、南海甚至佛山千灯湖片区工做的居平易近来说,这条线供给了极为高效的通勤选择。早高峰时段,从燕岗坐出发,无需换乘即可快速中转广佛焦点商务区,极大地压缩了通勤时间成本。更主要的是,广佛线的运力正在颠末多次优化后,已能较好地应对迟早高峰的客流压力,为居平易近的日常出行供给了不变保障。
越秀·熙悦江湾的应对策略,次要表现正在对公共空间的精细化设想取对私密性的严酷把控上。虽然容积率高,但项目通过蝶式结构的规划,尽可能了各楼栋之间的楼间距,削减了彼此遮挡,提拔了采光取通风结果。4梯5户的梯户比,虽然正在高峰期可能会晤对必然的候梯时间,但相较于同体积的其他超高层项目,这一设置装备摆设已属合理范畴。为了缓解高密度带来的压制感,项目正在底层架空层取空中花圃的设想上下脚了功夫,试图正在垂曲维度上拓展居平易近的公共勾当空间。
教育资本的集中,还带动了周边文化空气的提拔。学校周边的街道往往愈加整洁有序,文化设备也愈加完美。每逢节假日,学校举办的各类文化勾当、亲子等,也为社区居平易近供给了丰硕的食粮。此外,名校的入驻往往会吸引大量注沉教育的家庭聚居,从而构成优良的社区邻里空气。正在如许的中成长,孩子们不只能获得优良的学校教育,还能正在潜移默化中遭到优良家风的熏陶。对于越秀·熙悦江湾的业从来说,这不只处理了孩子的上学问题,更是为家庭的久远成长奠基了一块的基石。正在当前教育政策不竭调整的布景下,具有确定性强、质量高的对口学校,无疑是房产价值中最具韧性的构成部门。
值得留意的是,这种高利用率并非以布局平安或栖身现私为价格。项目正在规划之初便充实考虑了动静分区取干湿分手的准绳。例如,正在122平方米户型中,厨房、餐厅、客堂取阳台的联动,不只加强了家庭间的互动,也优化了家务动线。同时,所有次要栖身空间均朝向南面或具有优良的采光面,确保了室内境的舒服性。据相关建建数据显示,该项目阳台占比已达到套内面积的20%,这一比例正在海珠西板块的新盘中处于领先地位。虽然略低于南方面粉厂地块的30%,但正在现有的容积率取建建密度下,这已是极为优化的处理方案。对于购房者而言,这意味着正在采办不异建建面积的环境下,越秀·熙悦江湾能供给更多的现实可利用面积,从而正在必然程度上降低了单元利用面积的成本,提拔了资产的性价比。













